中央区エントランス改修事例 | 札幌の店舗改装で実績多数の株式会社ふくろうが施工事例をギャラリーで紹介します

logo
  • ホーム
  • コンセプト
  • 実績
    1. 店舗内装工事
    2. 住宅リフォーム工事
    3. 家具工事
    4. 建具工事
  • サービス
  • よくある質問
  • アクセス
    1. 株式会社ふくろう
  • ブログ
  • emailお問い合わせはこちら
  • 札幌で店舗改装なら株式会社ふくろう
    • コンセプト
    • サービス
    • 実績
    • よくある質問
    • 新着情報
    • アクセス
      • 株式会社ふくろう
    • ブログ
    • お問い合わせ
    • プライバシーポリシー
    • サイトマップ
  • 札幌で店舗改装なら株式会社ふくろう
  • 実績
  • 中央区エントランス改修事例
  • 札幌で店舗改装なら株式会社ふくろう
  • 実績
  • 中央区エントランス改修事例

中央区エントランス改修事例

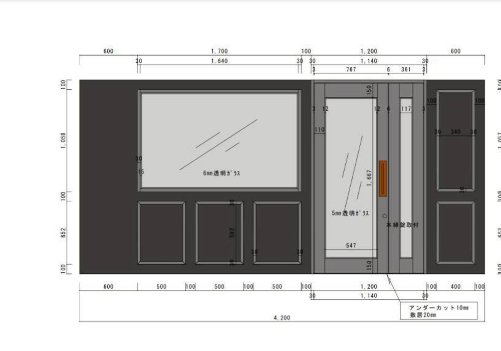
中央区・エントランス壁造作工事

中央区で、エントランス壁の造作工事を行いました。
まず、既存の古いエントランスを解体し、入口の位置を変更。
片開き戸だったドアを親子ドアにリニューアルしました。

店舗は年月が経つと業態や使い勝手が変化していきます。
毎日使うドアだからこそ、動線や開閉のしやすさにはこだわりたいものです。

今回は「バイクの出し入れをしやすくしたい」というご要望を受け、
開口部を広げて施工を行いました。
片開き戸から親子ドアに変更したことで、
有効開口を約30cmほど広く確保できました。

仕上げは黒塗装でまとめ、シックで格好良い印象のエントランスになりました。

一覧へ戻る

札幌で店舗改装をご希望でしたら、地域の皆様に愛され頼られる存在として常にお客様に寄り添った対応を心掛けている株式会社ふくろうにご依頼ください。自社工場を持つ強みを生かして内装仕上工事、塗装工事、建具工事だけでなく、家具製作、建具制作、什器製作も承り、お客様とのコミュニケーションも大事にして、コンサルティング設計から空間プロデュース、原状回復工事までこれまで多くのご依頼を受け信頼と実績を積んでまいりました。
地元の優良リフォーム会社としてお客様の理想を叶えるため、オーナー様や利用されるお客様、そこで働く従業員様の期待を満たしたいというこだわりをもって価格についてもお客様のご予算に合わせた工事を実施し、一切の妥協はいたしませんので、お客様も遠慮することなく、札幌で店舗改装についてのイメージやご要望をお聞かせください。

株式会社ふくろう
北海道札幌市南区北ノ沢1737−19
011-522-9367
011-522-9367
お問い合わせはこちら
  • ホーム
  • コンセプト
  • 実績
  • サービス
  • よくある質問
  • アクセス
  • ブログ
  • 新着情報
  • 株式会社ふくろう
  • お問い合わせ
  • プライバシーポリシー
  • サイトマップ
011-522-9367
011-522-9367

8:30 ~ 18:00

お問い合わせはこちら

instagram

Copyright (c) 株式会社ふくろう All Rights Reserved.